联系我们
-
广东银丰照明科技有限公司
重大项目:189 3331 4880 王先生
重大项目:189 3331 4172 胡先生
电 话:0760-8983 8806
地 址:广东省·中山市古镇曹三同益工业园同福南路5号C栋1楼.
深圳市锐普光电科技有限公司
联系人:王先生
重大项目:139 0247 5362
电 话:0755-2952 0286(20线)
传 真:0755-2952 9020
地 址:深圳市宝安区石岩街道浪心工业区3栋.
产品中心
120W大功率隧道灯
灯具特点:
1) 外观时尚,结构安装灵活方便,固定架可调节多角度方向投光;
2)主体为铝合金挤出成型,坚固可靠、散热性好、表面阳极氧化处理、耐腐蚀抗酸碱;
3)不锈钢紧固件坚固可靠、永久抗腐蚀;
4)PC面罩,安全防碎、抗冲击、高透明、耐高温、抗紫外线处理;
5)高温硅橡胶密封圈,防水性能高、抗老化能力强;
6)高亮度LED光源,光线柔和、发光效率高、耗电量小、可靠稳定性好、寿命长;
7)光源无热辐射、无有害金属汞、绿色环保;
8) 多种色温可供选择。
基本参数:
1) 工作温度: -30℃~+50℃/湿度40~90RH
2) 输入电压: AC85V~AC260V/50HZ
3) 启动电压: AC80V
4) 总功率:≤150W
5) 光通量:7200lm
6) 发光角度:70°
7) 功率因数:≥0.93
8) 防触电等级:II级
9) 防护等级:IP65
10) LED寿命:≥5万小时
11) 灯具重量:11.7KG
12) 包装重量:12.4KG
13) 包装尺寸:645*365*170(内尺寸)
14)中心照度:
|
中心距离(M)
|
5
|
10
|
15
|
20
|
|
照度数值(LUX)
|
52.5
|
14
|
7.1
|
4.1
|
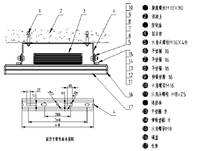
安装示意

尺寸规格:
.jpg)
主要应用
隧道、公园、小区道路、园林、别墅、酒店、庭院绿化带等。
|




